农村柴火灶哪个实用点(建柴火灶还有必要吗)
在以前的农村,几乎家家户户都有柴火灶,不仅对于父母那一辈有不同的意义,对于我们来说,柴火灶也承载了不少记忆。尤其是在冬天,哪里都不爱待,就喜欢待在厨房烧火。一边烤着火一边聊天,或是在灶里烤红薯、烤玉米,现在想起来依然觉得美好而自在。
但是在现在快节奏的生活影响下,花时间去焖煮一锅饭,变得遥远而不现实,大家总是行色匆匆,忙碌而疲惫,让人甚至没有时间停下来好好地吃一顿饭。
在城市中几乎不会再有柴火厨房的存在,可是回农村建房,可以自由发挥,厨房集柴火灶、现代厨房于一体,我们可以选择匆匆地解决一顿饭,也可以选择慢悠悠地享受食物、享受美味,既方便又省心还能提升生活效率,何乐而不为?
今天就给大家推荐4套带柴火灶的图纸,满满的生活气息,难忘的儿时回忆。
第1套:茶室 旋转楼梯 柴火灶,13×11米二层别墅,颜值高舒适度更高
占地尺寸:13.34m×11.34m
占地面积:159㎡
建筑面积:293㎡
建筑高度:9.3m
建筑情况:设5室 2厅 4卫 1厨房 1玄关 1茶室 1棋牌室 1活动室 1衣帽间

这套二层新中式别墅,外观大气,外墙色彩简单而不失韵味,挑空客厅设计,进一步美化了居室的居住氛围。
设计玄关,给室内外一个缓冲过渡区域。厨房集柴火灶、现代厨房于一体,满足多种烹饪方式,双开门设计,方便杀鸡宰鱼。五间卧室,可以满足每一位家人的居住需求。


第2套:庭院 车库 柴火灶,23×32米二层中式小院,住房功能齐全
占地尺寸:23.7m×32.4m
占地面积:296.8㎡
建筑面积:534.92㎡
建筑高度:10.023m
建筑情况:设7室 2厅 1起居室 3卫 1厨 1玄关 1柴火灶 1书房 1棋牌室 1车库

这套中式二层小院,外墙颜色以蓝色和白色为主,低调而不失韵味,"L“型设计,采光和通风效率高,居住舒适度高。


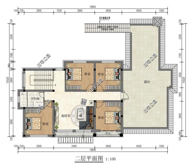
第3套:露台 神龛 柴火房,19×15米二层现代别墅,有柴火房更有烟火气
占地尺寸:19.84m×15.02m
占地面积:165㎡
建筑面积:293.4㎡
建筑高度:9.38m
建筑情况:设5卧室 2客厅 1餐厅 1厨房 3卫 2库房 1露台

这套二层现代别墅,外观简约大气,外墙采用真石漆喷涂,十分有质感。通透的玻璃元素更显居室敞亮,远远看上去十分惹眼。
入户即是宽敞的客厅,待人接客十分方便,厨房餐厅一体化设计,进一步拓宽视野。外设柴火房,满足多种美食需求,冬天使用还能烤火。


第4套:阳台 柴火房 开放布局,19×14米二层新中式别墅,享受雅致生活
占地尺寸:19.64m×14.14m
占地面积:138㎡
建筑面积:320㎡
建筑高度:9.6m
建筑情况:设5室 2厅 2卫 2厨 1书房 1阳台 1露台 1阶檐

这套新中式二层别墅,外观简约大气,白墙灰瓦搭配玻璃护栏,既展现了中式风格的古朴雅致也体现出现代风格的简单实用。
客厅和餐厅一体化设计,开放布局更显通透。厨房和柴火房相连,柴火房设计双开门,能提高室内室外联动性,也方便杀鸡、宰肉。五间卧室,可以满足每一位家人的居住需求。


不得不说,农村建房,好的设计和审美真的很重要。只要设计好,家人居住体验高。
这4套别墅设计都很好,你喜欢哪一套呢?
,